ID proprietà : C311/6
Vendita 595.000,00€ - Attico
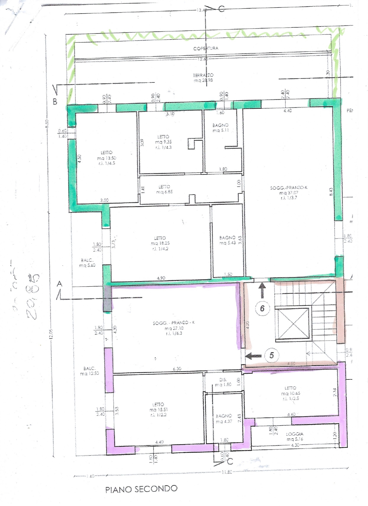
Attico quadrilocale a Cervia
Attico nuovo con terrazzo a Cervia.
Vendiamo appartamento quadrilocale, nuovo da costruttore, a Cervia.
La posizione è molto interessante in quanto si trova poco distante dal centro del paese e dal mare.
L’appartamento si trova al secondo ed ultimo piano, con ascensore,
ed è composto da ingresso nel soggiorno-pranzo con angolo cottura di 37 mq, due bagni, tre camere da letto di cui una matrimoniale da 18 mq,
una terrazza di 28 mq ed un balcone nella zona cottura.
Completa il tutto un posto auto riservato.
Rif. C311/6.
Immobile in classe A3.
Richiesta Euro 595.000,00.
Altre informazioni
Cervia si trova sulla costa del mar Adriatico, a sud della città di Ravenna da cui è divisa dal fiume Savio che ne delimita il confine .
Cervia dispone di più di 9 km di spiaggia finissima e a causa della qualità delle sue acque ha conseguito, per la ventunesima volta, la Bandiera Blu.
Il centro storico, il porto canale ricco di ristoranti e i numerosi servizi, rendono Cervia una località ideale per trascorrere le vacanze o per risiedervi.
Grande è l’attenzione dedicata ai piccoli ospiti e a coloro che portano in vacanza il proprio animale domestico e soprattutto agli amanti dello sport.
Il porto turistico di Cervia è ben attrezzato per il diporto e dove potrete acquistare il pesce fresco pescato in Adriatico dai pescatori locali.
Cervia è caratterizzata da ampi spazi verdi, pinete e parchi.
Mercatini tipici, serate a tema, discoteche, street-bar e ristoranti ravvivano le vostre serate.
A pochi chilometri trovate il parco giochi di Mirabilandia frequentato da tanti turisti provenienti da tutto il mondo.
Degna di nota è la storia di Cervia legata alla produzione del sale, le cui Saline erano probabilmente già in funzione in periodo etrusco .
Nella riserva naturale delle saline, della superficie di 827 ettari, nidificano svariate qualità di uccelli per cui potrete effettuare birdwatching .
Le terme di Cervia, aperte da maggio a ottobre, offrono un’ampia gamma di trattamenti estetici e terapeutici sfruttando le proprietà dei fanghi e dell’acqua madre della salina.
https://www.salinadicervia.it/



